Début de la démolition pour la future résidence intergénérationnelle à Sainte-Luce-sur-Loire

Perspective.png
Plan masse.png
Photo 4.jpg

3 images disponibles

Perspective.png
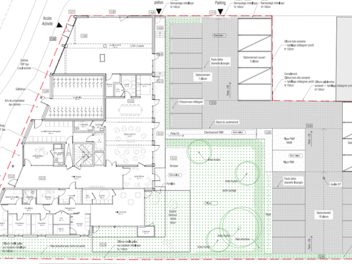
Plan masse.png
Photo 4.jpg

20/02/2023

 

La phase de démolition a débuté pour la future Résidence Intergénérationnelle située dans le centre-ville de Sainte-Luce au « 5,7,9 rue de la Loire ». Cette résidence, réalisée par CIF COOPERATIVE, est composée de 26 logements individuels locatifs sociaux destinés aux séniors (PLAI, PLUS et PLS) ainsi que d'une Maison d'Assistantes Maternelles et d’un local d’activité.

Le projet a été élaboré en étroite concertation avec la ville de Sainte-Luce sur Loire, suite à une enquête réalisée en juin 2016 auprès des habitants afin de mieux cerner leurs attentes en termes de déplacement, d’activité et d’habitat et services pour les personnes âgées.

Le rez-de-chaussée est composé d’une maison d'assistantes maternelles (MAM) avec son jardin privatif, d’un local d’activités, d’une loge de gardien avec la présence d’un gardien à temps partiel et d’un espace commun pour les résidents (cuisine, coin lecture, salon). Un jardin d’hiver et un jardin à partager entre résidents et la maison d'assistantes maternelles contribueront encore à renforcer le lien intergénérationnel.  

Les deux étages et l’attique de la résidence concernent les logements locatifs sociaux. Ces logements sont complètement adaptés pour les seniors (douche adaptée, cuisine aménagée, volets roulants électriques et centralisés…) 

Une résidence idéale pour favoriser les échanges entre les séniors et les jeunes enfants !

Livraison prévue fin 2024.

Architecte : agence DLW à Nantes